浙铁绿城·长风中心 - 5A甲级写字楼出售
浙铁绿城·长风中心位于上海普陀长风生态商务区,生态商务区是上海第一批重点推进的现代服务业集聚区之一,更是上海第一个以“生态”命名的商务区。36万方公园生活办公综合体,其开发总量约290万㎡,其中办公楼开发总量为170万㎡,住宅开发总量为70万㎡,商业配套服务设施开发总量为30万㎡,公建配套达到了20万㎡。
出售报价:整栋4.5万、整层4.8万/平
(T2整栋已售于长征资管、罗莱生活)
交通:地铁13号线大渡河路站、15号线(在建)长风公园站
综合项目分布
一期、二期已售

三期楼栋分布(T2已售)

T3整栋剖面图

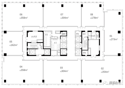
T1整层平面图

T2整层平面图

T3整层平面图

项目实景

办公区实景




